XGN66-12(Z) 箱型固定交流金属封闭开关设备 ( 以下简称开关柜 )是我公司新一代高压电器成套产品,符合国家标准 GB3906《-35kV交流金属封闭开关设备》电力部 DLT404《户内交流高压开关柜订货技术条件》的要求,也满足国际标准 IEC60298《1kV 以上52kV 以下交流金属封闭开关设备和控制设备的要求》。
该产品吸收了国外的先进技术,它体积小,仅是普通开关柜体积的50%,断路器具有可靠性高,性能好;“五防”联锁机构可靠、简单等优点。开关柜是 3.6、7.2、12kV 三相交流电 50Hz 单母线分段的户内成套装置,作为接受和分配电能之用。并具有对电路进行控制、保护和监测等功能,可使用在各类型发电厂、变电站及工矿企业,高层建筑等场所,也可与环网柜组合应用于开闭所中。
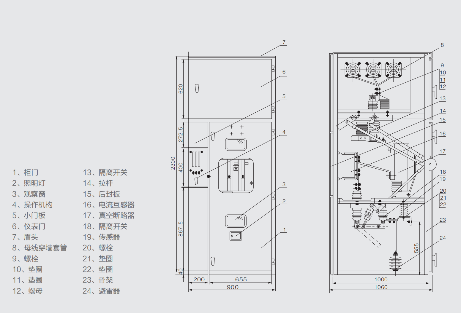
柜体采用优质角钢焊接而成;
断路器室位于柜体中 ( 下 ) 部,安装、调试、维护方便。标准配装 VS1 断路器,并设有压力释放通道,确保人身安全;
采用先进可靠的旋转式隔离开关,可在主母线带电下安全进入断路器室检修;
整柜防护等级 IP2X;
设有可靠功能齐全的强制性机械闭锁装置,简便有效达到“五防”要求;
具有可靠的接地系统;
门上装有观察窗,可清楚观察到柜内元件的工作状态;
操作机构闭锁采用同 XGN2-12 柜用的 JSXGN 闭锁机构,简单可靠方便实用;
进出线电缆低于柜体前部,方便用户连接。
海拔高度不超过 1000m;
环境温度:- 25℃ ~ +40℃,24 小时内平均温度不超过+35℃;
水平倾斜度不大于 3°;
地震强度不超过 8 级;
无剧烈振动和冲击及爆炸危险场所。


